Sprzedaż

Dom w zabudowie szeregowej Tuchów.

Miasto Tarnów, Tuchów
164,46 m2
4 pokoi
2017 r.
1/2 bliźniaka
455 000 PLN
2 766,63 PLN /m2

Opis oferty

Przedmiotem sprzedaży jest dom o nowoczesnej architekturze położony w Tuchowie przy ul.Okólnej.

Do wyboru segment zewnętrzny lub środkowy.

Dom wybudowany w 2017 roku.

Dom oferowany jest w stanie deweloperskim.
Wybudowany w tradycyjnej technologii.

Budynek o powierzchni użytkowej 164,46 m2.

Składa się z dwóch kondygnacji.

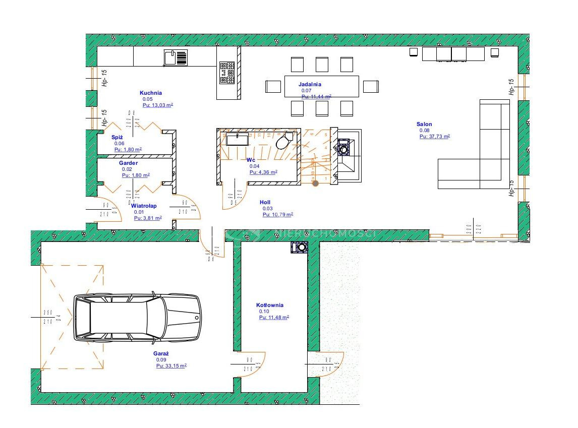
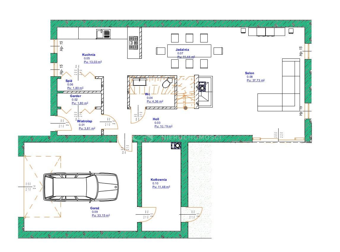
Na parterze znajdują się:
- przestronny salon z jadalnią,
- kuchnia z praktyczna spiżarnią,
- przy wiatrołapie praktyczna garderoba,
- wc,
- holl,
- garaż,
- oraz kotłownia.

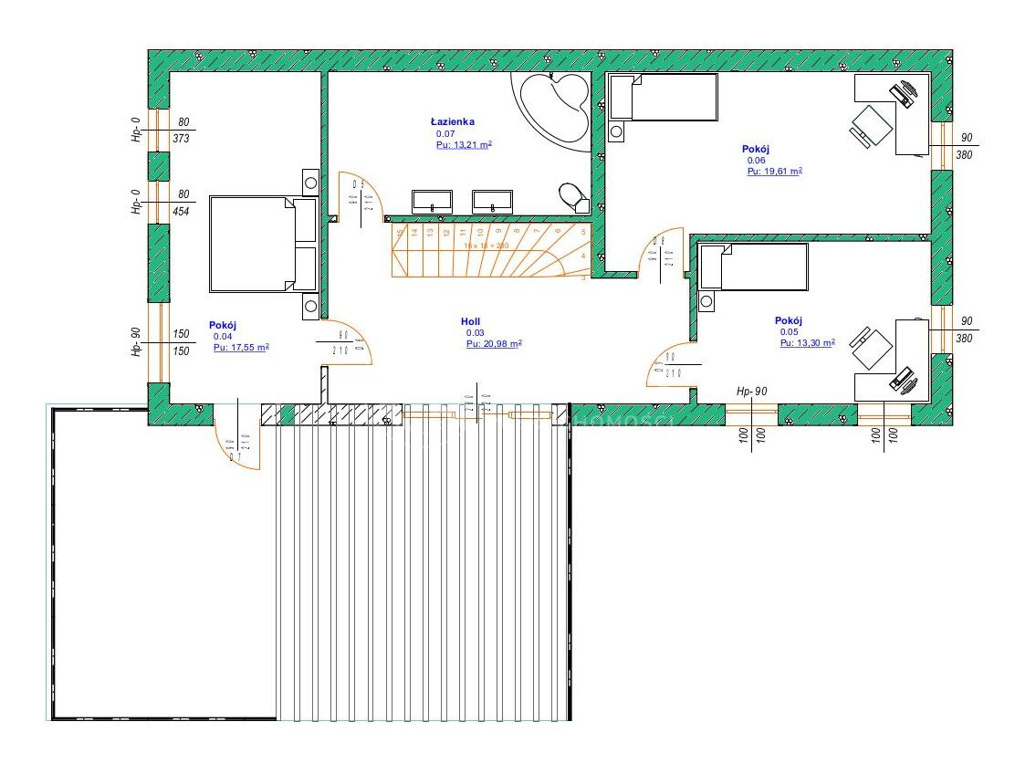
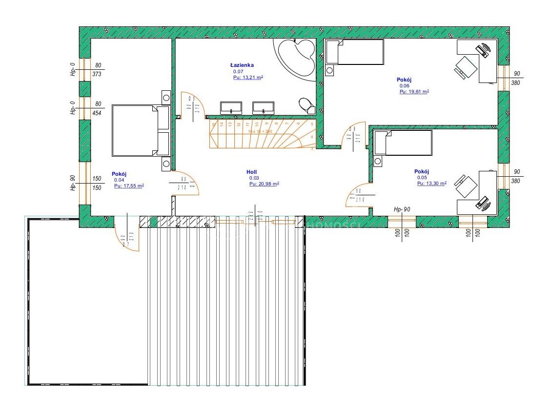
Na piętrze:
- 3 sypialnie,
- obszerna łazienka,
- holl,
- oraz taras, który znajduje się nad garażem.


Rzut wiernie odzwierciedla rozkład pomieszczeń w nieruchomości.

Projekt z dużą ilością przeszkleń.
W budynku rozmieszczona instalacja elektryczna, gazowa oraz wod-kan.

Do budynku wykonane są przyłącza prądu i gazu.

Ogrzewanie przy pomocy pieca dwufunkcyjnego.

Deweloper jest w trakcie rozmieszczania instalacji grzewczej oraz wykonania ogrzewania podłogowego w łazience, wc oraz wiatrołapie.

Do wykończenia budynku wykorzystano materiały wysokiej jakości.

Dom posadowiony jest na działce o powierzchni 13,79 ar.

Działka o wymiarach 14 x 93 m.
Działka bezpośrednio przy drodze gminnej asfaltowej.

Mimo,że nieruchomość znajduje się na uboczu, wszędzie blisko.
Miejsce w którym można odpocząć i poczuć klimat domowego ciepła.

Z nieruchomości do:
- Rynku w Tuchowie 750 m,
- żłobek 1 km,
- przystanek autobusowy,PKP 1 km,
- ośrodek zdrowia 1,4 km,
- najbliższy supermarket 300 m.
- Kino "Promień" 550 m.

CENA: 455 000 PLN


Informacje dotyczące opisu nieruchomości podane są przez właściciela, mają charakter wyłącznie informacyjny i mogą podlegać aktualizacji.
Celem otrzymania aktualnej oferty prosimy o bezpośredni kontakt z naszym biurem.

Treść niniejszego ogłoszenia nie stanowi oferty handlowej w rozumieniu Kodeksu Cywilnego.

Nasze transakcje objęte są obowiązkowym ubezpieczeniem OC, zawartym w PZU - Nr polisy 1098387074.

Opisy, zdjęcia, pliki zamieszczone na stronie www.cich-nieruchomosci.pl stanowią własność CICH Nieruchomości.
Kopiowanie i rozpowszechnianie treści zamieszczonych na stronie www.cich-nieruchomosci.pl jest zabronione.

Oferta wysłana z programu IMO dla pośredników. więcej
Renata Cich

Renata Cich
Agent nieruchomości

795895400 biuro@cich-nieruchomosci.pl
Wyślij Wiadomość

Informacje

Numer oferty86 (IMO)
Typ transakcjiSprzedaż
Cena455 000 PLN
Powierzchnia164.46 m2
Cena za m22 766,63 PLN / m2
Liczba pokoi4
Powierzchnia działki m21 379
Rok budowy2017
Standard wykończeniabardzo dobry
Rynekpierwotny
Długość93
Szerokość14
Typ dachudwuspadowy
Typ zabudowy1/2 bliźniaka
Technologiamurowana
Materiał budowlanyceramika
Typ drogiasfaltowa
Typ ogrodzeniabrak
Elewacjatynk
Liczba kondygnacji1
Forma własnościwłasność
Liczba sypialni3
Liczba łazienek2
Kuchniaoddzielna
Łazienkaz wc
OknaPCV
Ścianytynk cementowy
Liczba miejsc parkingowych1
Garażw bryle
Kanalizacjamiejska
Prądjest
Gazjest
Wodamiejska
Typ Ogrodzeniabrak
Typ Balkonutaras
Typ Drogiasfaltowa
Ogrzewaniegazowe

Plan 1

Plan 2

Wyślij zapytanie